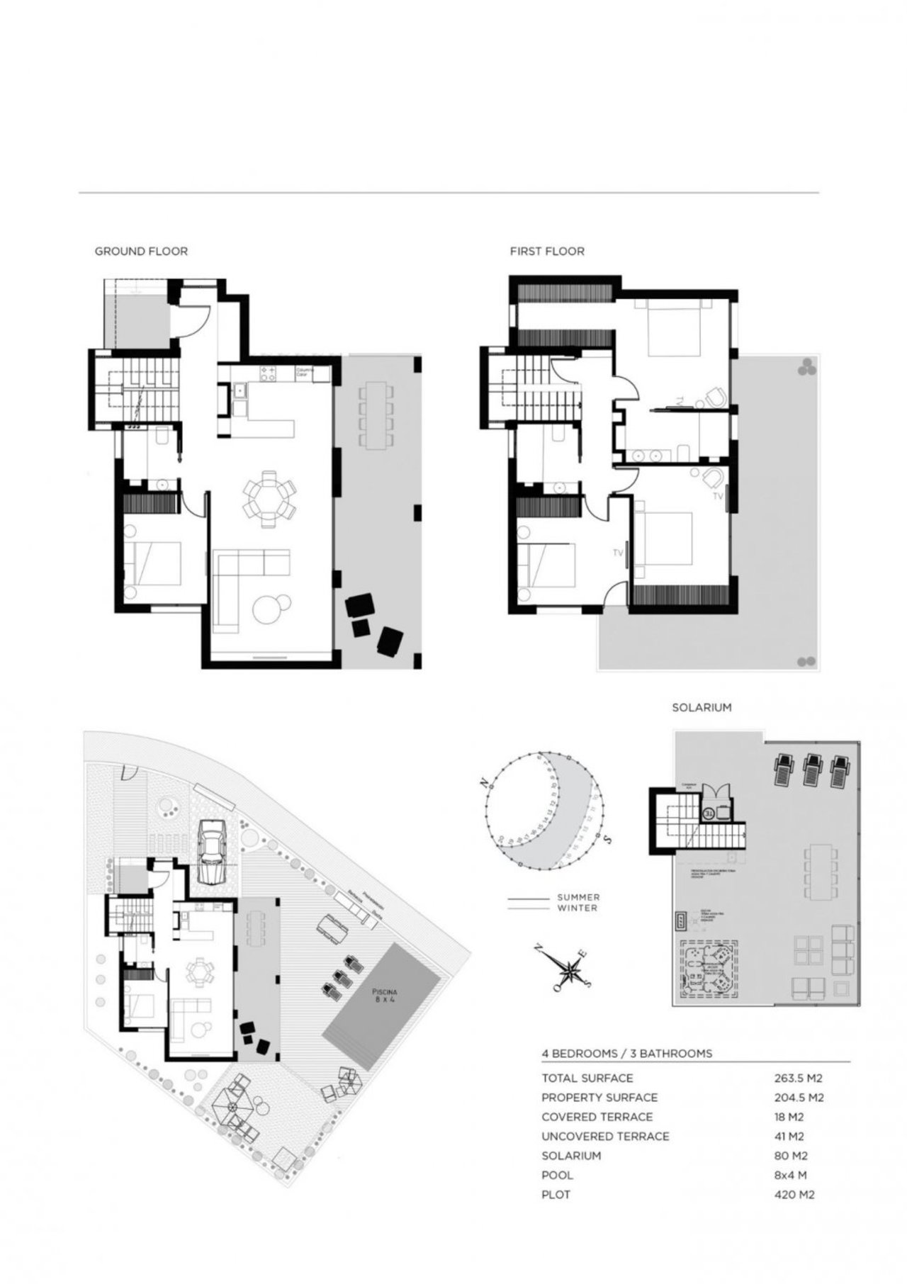
Belangrijkste kenmerken
- 4 slaapkamers
- 3 badkamers
- 196 m2 bewoonbare oppervlakte
- 381 m2 perceel
- Zwembad: Ja
Beschrijving
NIEUWBOUW MODERNE VILLA IN CIUDAD QUESADA Prachtige villa in moderne stijl met privé tuin en solarium in de urbanisatie Doña Pepa – Ciudad Quesada. Villa heeft woon-eetkamer met open keuken, 4 slaapkamers en 3 badkamers, solarium, privé tuin, zwembad en parkeerplaats. Met alle nodige diensten binnen handbereik: supermarkten, golfbanen, restaurants, gezondheidscentra. Ciudad Quesada heeft zich snel ontwikkeld in de afgelopen twee decennia, met een breed spectrum van woningen voor alle behoeften en budgetten, met inbegrip van vrijstaande villa’s, kleinere gated communities, bungalows en appartementen. De voorzieningen beschikbaar in Quesada zijn ook verbeterd met de tijd, dus het is nu de thuisbasis van een breed scala aan bars, restaurants, winkels en supermarkten, samen met een aantal banken, tandheelkundige klinieken, apotheken, kapsalons, krantenwinkels, tabakswinkels, en een nieuw medisch centrum gelegen in de urbanisatie Doña Pepa. Slechts 10 minuten van de beste stranden van de Costa Blanca en 30 minuten van de internationale luchthaven van Alicante. 1023

















