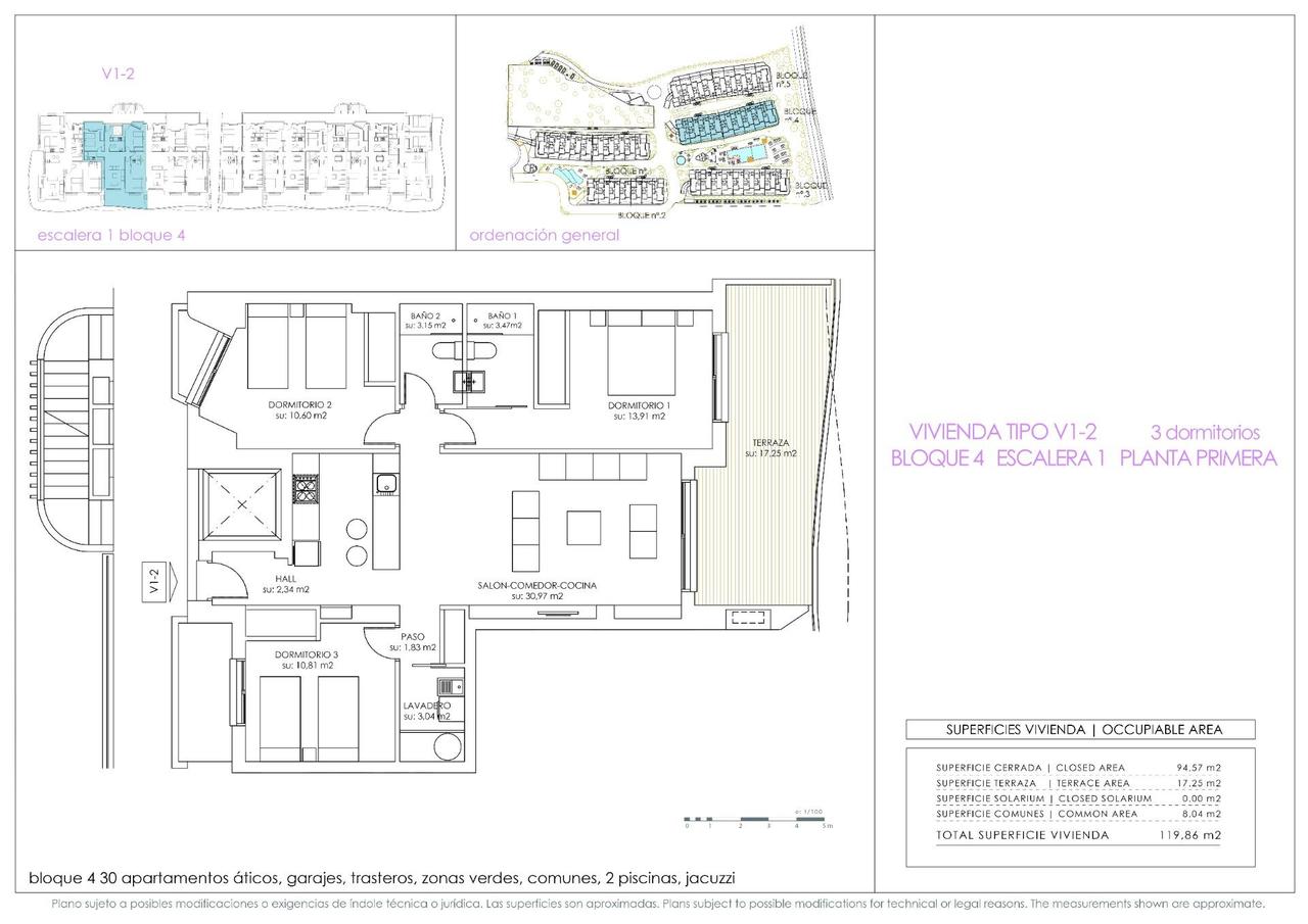
Belangrijkste kenmerken
- 3 slaapkamers
- 2 badkamers
- 94 m2 bewoonbare oppervlakte
- 0 m2 perceel
- Zwembad: Ja
Beschrijving
NIEUWBOUW WOONPLAATS IN PLAYA FLAMENCA!!! Van een gevestigde ontwikkelaar zijn we trots om deze net vrijgegeven nieuwe woonwijk aan te bieden op slechts 500 m van zee in het populaire Playa Flamenca (Orihuela Costa). Residentieel met mooie gemeenschappelijke zwembaden, jacuzzi’s en mooie gemeenschappelijke tuinen. Alle diensten zoals supermarkten, bars en restaurants, etc zijn op loopafstand op een zeer centrale plek aan Orihuela Costa. Grote verscheidenheid aan typen om uit te kiezen: appartementen met 2, 3 of 4 slaapkamers. Lage verdiepingen met privétuinen of bovenste verdiepingen met privésolariums. Alle woningen hebben een parkeerplaats en een berging inbegrepen in de prijs. Het winkelcentrum Zenia Boulevard op 1 km afstand en verschillende golfbanen zoals Villamartin, Campoamor binnen 5 km van deze woonwijk zullen een ideale locatie zijn voor uw vakantie of uw permanente bewoning.




































