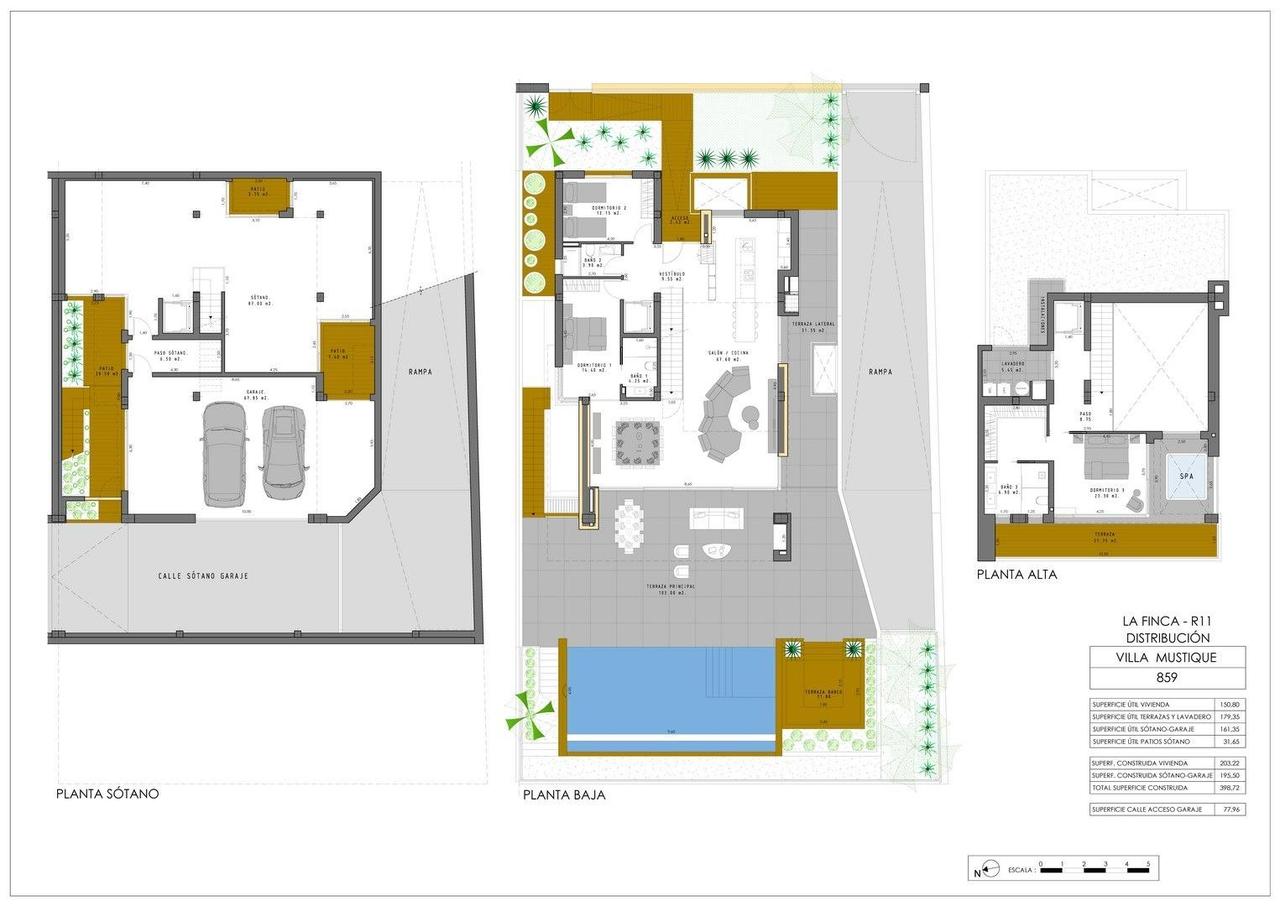
Belangrijkste kenmerken
- 3 slaapkamers
- 3 badkamers
- 203 m2 bewoonbare oppervlakte
- 461 m2 perceel
- Zwembad: Ja
Beschrijving
NIEUWBOUW LUXE EERSTE LIJN VILLA IN ALGORFA GOLFCURSUS Nieuwbouw eerste lijn golf villa in La Finca Golf resort. Luxe villa gebouwd over 2 verdiepingen met 3 slaapkamers, 3 badkamers, hoofdsuite met inloopkast, vloerverwarming (gehele pand), privétuin met overloopzwembad en chill area, domoticasysteem, domoticasysteem, ondergrondse garage. La Finca Golfresort, gelegen in de gemeente Algorfa, in de Vega Baja van de rivier de Segura, dit kleine stadje is van oudsher gewijd aan de landbouw, voornamelijk aan de teelt van artisjokken en citrusvruchten. Algorfa heeft een infrastructuur van hoogwaardige diensten waarmee u comfortabel kunt leven. Sluit de prachtige stranden van Guardamar en Torrevieja, waar u meer dan driehonderd dagen per jaar kunt genieten van het warme water en zonnebaden. Daarnaast vind je in deze toeristische steden winkelcentra, restaurants en uitgaansgelegenheden. De luchthaven van Alicante ligt op 40 minuten rijden en de luchthaven van Murcia ligt op 55 minuten rijden.
















