Belangrijkste kenmerken
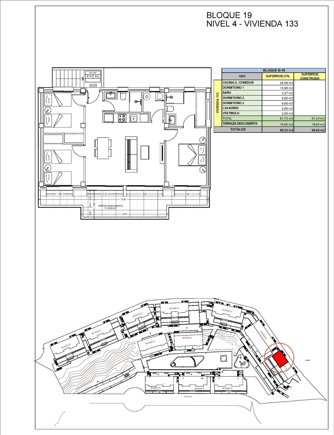
- 3 slaapkamers
- 2 badkamers
- 89 m2 bewoonbare oppervlakte
- 0 m2 perceel
- Zwembad: Ja
Beschrijving
Nieuwbouwappartementen met uitzicht op zee in Xeresa Costa Blanca Noord Moderne woonwijk met panoramisch uitzicht Maak kennis met een uitzonderlijk nieuwbouwproject in een besloten gated community in Xeresa, met appartementen met 1, 2 en 3 slaapkamers, 1 of 2 badkamers en een prachtig vrij uitzicht. Elke woning heeft een ruim terras van meer dan 15 m2, met panoramisch uitzicht op de sinaasappelboomgaarden, de omliggende bergen of de Middellandse Zee in de verte. Dit project is ontworpen met het oog op comfort, licht en een natuurlijke omgeving en is ideaal voor wie op zoek is naar een rustige levensstijl dicht bij de kust. Toplocatie dicht bij stranden en voorzieningen Op slechts 3 km van het strand en slechts 1 km van het charmante dorpje Xeresa, genieten bewoners van gemakkelijke toegang tot winkels, cafés en essentiële voorzieningen. Het treinstation in Xeraco, op 3 km afstand, biedt directe verbindingen naar de stad Valencia, terwijl de populaire kustplaats Gandia op minder dan 5 km van het complex ligt, met winkelcentra, restaurants, recreatiefaciliteiten en een prachtige jachthaven. Hoogwaardige woningen ontworpen voor comfort en licht Alle appartementen zijn zorgvuldig ontworpen, zodat de belangrijkste leefruimtes profiteren van direct natuurlijk licht en uitzicht naar buiten. De open indeling vergroot de ruimte en creëert een moderne, harmonieuze sfeer die ideaal is om te genieten van het mediterrane leven. De woningen zijn voorzien van een parkeerplaats en berging, lift, voorinstallatie van airconditioning, ingerichte en uitgeruste keukens met inductiekookplaat, afzuigkap, oven en vaatwasser, plus hoogwaardige Porcelanosa-afwerkingen. Resortachtige gemeenschappelijke voorzieningen Bewoners kunnen genieten van drie spectaculaire zwembaden, waaronder een met watervallen en een tropisch zwembad met hydromassage. De gemeenschap biedt ook prachtig aangelegde tuinen met wandelpaden, een volledig uitgeruste fitnessruimte met geavanceerde apparatuur, een multifunctionele sociale club, ontspanningsruimtes met ligstoelen, douches en parasols, en grote groene ruimtes die zijn ontworpen voor ontspanning en welzijn. Afstanden tot bezienswaardigheden Strand 3 km Dorpskern van Xeresa 1 km Treinstation Xeraco 3 km Gandia 5 km Valencia 60 km Luchthaven Valencia 70 km Jachthaven Gandia 6 km Geniet van het mediterrane leven in de natuur en vlakbij de zee Ontdek een uitzonderlijke kans om een moderne woning met uitzicht op zee of de bergen te kopen in een rustige maar goed bereikbare omgeving. Neem vandaag nog contact met ons op voor meer informatie of om een bezichtiging te plannen en uw nieuwe woning in Xeresa te bemachtigen.


































