Belangrijkste kenmerken
- 2 slaapkamers
- 2 badkamers
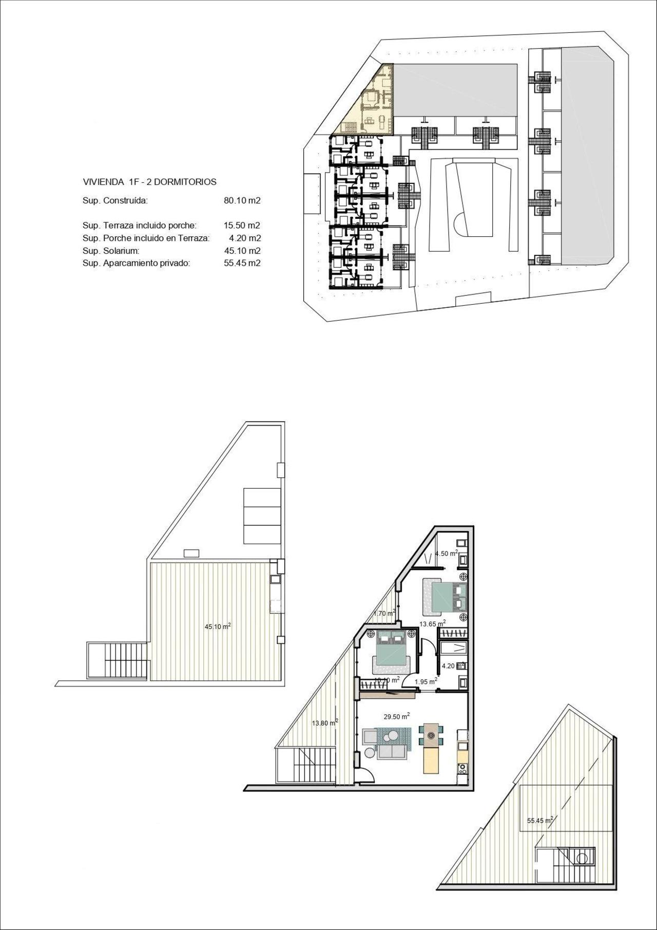
- 80 m2 bewoonbare oppervlakte
- 0 m2 perceel
- Zwembad: Ja
Beschrijving
NIEUWBOUW BUNGALOWS IN ROLDAN Nieuwbouw omheind wooncomplex van bungalowappartementen gelegen in Roldán, Murcia. Deze exclusieve bungalows zijn ontworpen met 3 slaapkamers en 2 badkamers, terras op de begane grond en met 2 slaapkamers en 2 badkamers en solarium voor de bovenverdieping. De interieurs, elegant en functioneel, hebben vloeren van hoge kwaliteit, volledig ingerichte keukens in wit gecombineerd met imitatiehout, inclusief elektrische apparaten. De badkamers hebben een badmeubel met wastafel en verlichting. De slaapkamers zijn voorzien van beklede kledingkasten met laden en schuifdeuren en elke woning heeft een pre-installatie voor gekanaliseerde airconditioning. De buitenkant is niet minder indrukwekkend, met onder andere een gemeenschappelijk zwembad en een prachtige sportzone en kinderspeelplaats op kunstgras om van te genieten. Elke woning heeft een parkeerplaats. Bergingen zijn optioneel tegen een meerprijs. Roldan zelf is een traditionele stad met alle plaatselijke voorzieningen die je nodig hebt, zoals supermarkten, restaurants, bars, een kliniek, apotheek, politiebureau, benzinestation, monteurs, tandartsen, dokters en nog veel meer. De nabijgelegen golf resorts van La Torre, & Terrazas zijn gemakkelijk bereikbaar, Corvera Airport ligt op 15 minuten afstand en de stranden van de Mar Menor op slechts 20 minuten rijden.


















